140

Wavin Gestione delle acque meteoriche Manuale tecnico

Tel. +39 0425 75 88 11 | Fax +39 0425 75 60 52

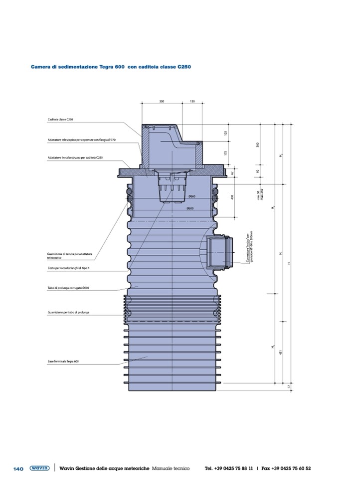
Camera di sedimentazione Tegra 600 con caditoia classe C250

Caditoia classe C250

Adattatore telescopico per coperture con flangia Ø 770

Adattatore in calcestruzzo per caditoia C250

Guarnizione di tenuta per adattatore

telescopico

Cesto per raccolta fanghi di tipo K

Tubo di prolunga corrugato Ø600

Guarnizione per tubo di prolunga

Base Terminale Tegra 600

300

150

Ø660

Ø600

H

3

4

5

1

H

1

H

4

5

7

H

C

o

n

n

e

t

t

o

r

e

i

n

s

i

t

u

p

e

r

g

i

u

n

z

i

o

n

i

Ø

1

6

0

o

2

0

0

m

m

4

0

0

6

2

m

i

n

.

3

0

m

a

x

.

2

5

0

9

2

3

0

0

1

7

5

1

2

5

H

2