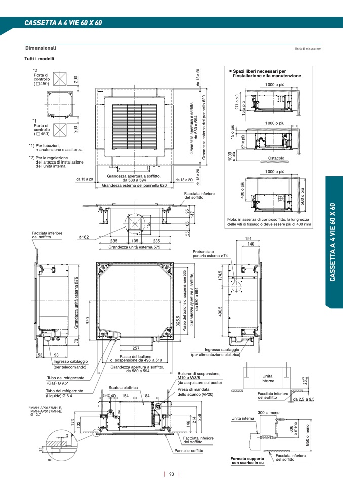
CASSETTA A 4 VIE 60 X 60

Dimensionali

Unità di misura: mm

Tutti i modelli

Porta di

controll

o

d

a

1

3

a

2

0

G

r

a

n

d

e

z

z

a

a

p

e

r

t

u

r

a

a

s

o

f

f

i

t

t

o

,

d

a

5

8

0

a

5

9

4

da 13 a 20

da 13 a 2

0

d

a

1

3

a

2

0

G

r

a

n

d

e

z

z

a

e

s

t

e

r

n

a

d

e

l

p

a

n

n

e

l

l

o

6

2

0

Facciata inferiore

del sof

fitt

o

1000 o pi

ù

Porta di

controll

o

Per tubazioni

,

manutenzione e assitenza

.

Per la regolazione

dell'altezza di installazione

dell'unità interna.

Grandezza apertura a sof

fitto,

da 580 a 594

Grandezza esterna del pannello 620

delle viti di fissaggio deve essere più di 400 m

m

Nota: in assenza di controsof

fitto, la lunghezza

1

0

0

0

o

p

i

ù

1

5

o

p

i

ù

4

0

0

o

p

i

ù

2

7

1

o

p

i

ù

2

7

1

o

p

i

ù

1

5

o

p

i

ù

5

6

0

o

p

i

ù

1000 o pi

ù

l’installazione e la manutenzion

e

Spazi liberi necessari per

Ostacol

o

1000 o pi

ù

Facciata inferiore

del soffitto

Grandezza unità esterna 57

5

C

A

S

S

E

T

T

A

A

4

V

I

E

6

0

X

6

0

G

r

a

n

d

e

z

z

a

u

n

i

t

à

e

s

t

e

r

n

a

5

7

5

Ingresso cablaggio

(per telecomando

)

Tubo del refrigerant

e

Tubo del refrigerante

(Liquido) Ø 6.

4

* MMH-AP0157MH-E,

MMH-AP0187MH-E:

Ø 12.

7

Ø 9.5*

(Gas) Ø 12.7

Passo del bullone

di sospensione da 496 a 519

Grandezza apertura a sof

fitto,

da 580 a 594

Scatola elettric

a

P

a

s

s

o

d

e

l

b

u

l

l

o

n

e

d

i

s

o

s

p

e

n

s

i

o

n

e

5

3

5

Pretranciato

per aria esterna ø74

G

r

a

n

d

e

z

z

a

a

p

e

r

t

u

r

a

a

s

o

f

f

i

t

t

o

,

d

a

5

8

0

a

5

9

4

Ingresso cablaggio

(per alimentazione elettrica

)

Bullone di sospensione

,

M10 o W3/

8

(da acquistare sul posto

)

Presa di mandata

dello scarico (VP20

)

Facciata inferiore

del soffitto

Pannello sof

fitt

o

Unità intern

a

Formato supporto

con scarico in su

Unità

intern

a

Facciata inferior

e

del sof

fitt

o

da 2,5 a 9,5

300 o men

o

6

3

6

o

m

e

n

o

8

5

0

o

m

e

n

o

Facciata inferior

e

del sof

fitt

o

93