CANALIZZABILE ALTA PREVALENZ

A

RAV-RM2241DTP-E2, RAV-RM2801DTP-E2

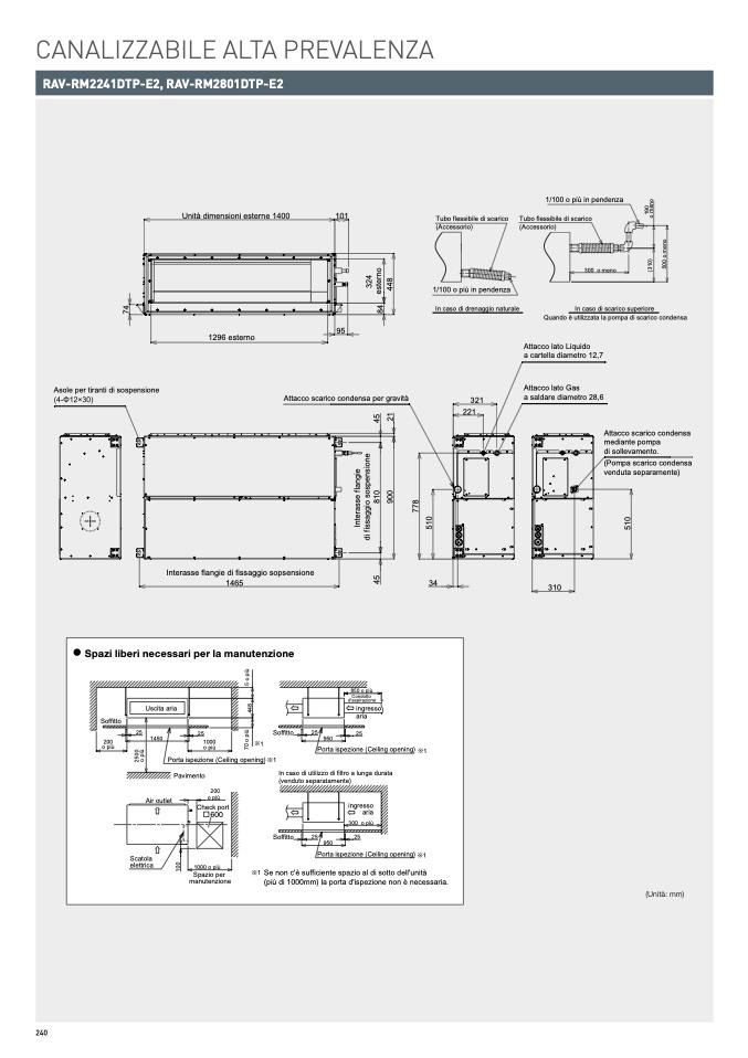
Unità dimensioni esterne 140

0

Asole per tiranti di sospensione

7

4

7

4

1296 estern

o

1296 estern

o

Interasse flangie di fissaggio sopsensione

146

5

5

4

I

n

t

e

r

a

s

s

e

f

l

a

n

g

i

e

d

i

f

i

s

s

a

g

g

i

o

s

o

s

p

e

n

s

i

o

n

e

8

1

0

5

4

9

0

0

2

1

Attacco scarico condensa per gravit

à

95

95

8

4

8

4

3

2

4

e

s

t

e

r

n

o

4

4

8

10

1

1/100 o più in pendenz

a

1

9

0

o

m

e

n

o

Tubo flessibile di scaric

o

Tubo flessibile di scaric

o

(Accessorio

)

(Accessorio

)

300 o men

o

(

3

1

0

)

5

0

0

o

m

e

n

o

1/100 o più in pendenza

In caso di drenaggio naturale

In caso di scarico superior

e

Quando è utilizzata la pompa di scarico condens

a

Attacco lato Liquid

o

a cartella diametro 12,

7

Attacco lato Ga

s

a saldare diametro 28,

6

321

221

7

7

8

Attacco scarico condens

a

mediante pompa

di sollevamento

.

(Pompa scarico condensa

venduta separamente

)

5

1

0

5

1

0

34

31

0

Spazi liberi necessari per la manutenzion

e

Uscita ari

a

4

4

8

5

o

p

i

ù

Soffitto

25

25

145

0

200

100

0

o pi

ù

o pi

ù

7

0

o

p

i

ù

1

2

5

0

0

o

p

i

ù

Porta ispezione (Ceiling opening

)

Paviment

o

Air outlet

20

0

o pi

ù

Check por

t

600

Scatol

a

elettric

a

1

0

0

1000 o più

Spazio per

manutenzione

1

850 o pi

ù

Condott

o

d'aspirazion

e

ingress

o

ari

a

Soffitto

25

25

950

Porta ispezione (Ceiling opening)

1

In caso di utilizzo di filtro a lunga durat

a

(venduto separatamente)

ingress

o

ari

a

300 o più

Soffitto

25

2

5

950

Porta ispezione (Ceiling opening

)

1

1

Se non c'è sufficiente spazio al di sotto dell'unit

à

(più di 1000mm) la porta d'ispezione non è necessaria.

(Unità: mm

)

240