Dimensioni del prodotto e degli attacchi

Bollitore con capacità di 100 l

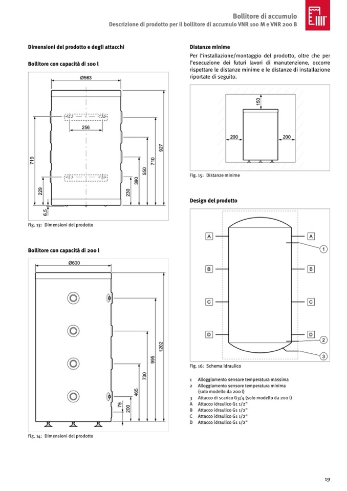
Distanze minime

Per l’installazione/montaggio del prodotto, oltre che per

l’esecuzione dei futuri lavori di manutenzione, occorre

rispettare le distanze minime e le distanze di installazione

riportate di seguito.

Bollitore di accumulo

Descrizione di prodotto per il bollitore di accumulo VNR 100 M e VNR 200 B

Ø563

256

2

2

9

7

1

0

5

5

0

6

,

5

2

3

0

3

9

0

7

1

9

9

2

7

1

5

0

200

200

Fig. 15: Distanze minime

Design del prodotto

A

B

C

D

A

1

B

C

D

2

3

Fig. 13: Dimensioni del prodotto

Bollitore con capacità di 200 l

Ø600

9

9

5

7

3

0

4

6

5

7

5

2

0

0

1

2

0

2

Fig. 14: Dimensioni del prodotto

Fig. 16: Schema idraulico

1 Alloggiamento sensore temperatura massima

2 Alloggiamento sensore temperatura minima

(solo modello da 200 l)

3 Attacco di scarico G3/4 (solo modello da 200 l)

A Attacco idraulico G1 1/2”

B Attacco idraulico G1 1/2”

C Attacco idraulico G1 1/2”

D Attacco idraulico G1 1/2”

19