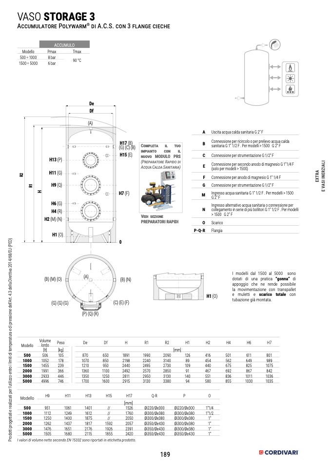
VASO STORAGE 3

Accumulatore Polywarm

®

di A.C.S. con 3 flange cieche

Modello

500 ÷ 1000

1500 ÷ 5000

Pmax

8 bar

6 bar

Tmax

90 °C

De

Modello

Peso

De

Df

H

R1

R2

H1

H2

H4

H6

H7

[lt]

[kg]

500

506

105

1000

1052

178

1500

1455

239

2000

1991

366

3000

2933

446

5000

4996

746

[mm]

870

650

1891

1990

2090

126

416

Modello

H9

H11

H13

H15

H17

[mm]

1401

//

1526

1612

//

1760

1875

//

2050

1817

1592

2057

2176

1926

2391

2115

1855

2420

Q-R

Øi220/Øe300

Øi300/Øe380

Øi300/Øe380

Øi350/Øe430

Øi350/Øe430

Øi350/Øe430

P

O

Øi220/Øe300

1"1/4

Øi300/Øe380

1"1/2

Øi300/Øe380

1"

Øi300/Øe380

1"

Øi300/Øe380

1"

Øi350/Øe430

1"

H1 (O)

(B) (M) (O)

(B) (M) (O)

(

B

) (

M(

G

)

)

(

(

O

G

)

) (

G

)

(G) (G) (G)

(G) (G) (G)

(A)

(A)

0

P-Q-R

0

0

(B) (N)

(B) (N)

(

C

) (

(

E

B

)

)

(

F

(

N

) )

(C) (E) (F)

(C) (E) (F)

I modelli dal 1500 al 5000 sono

dotati di una pratica “gonna” di

appoggio che ne rende possibile

la movimentazione con transpallet

e muletti e scarico totale con

tubazione già montata.

Volume

lordo

(

A

)

(P) (Q) (R)

(P) (Q) (R)

(P) (Q) (R)

500

951

1061

1000

1112

1249

1500

1250

1400

2000

1262

1437

3000

1476

1651

5000

1505

1680

I valori di volume netto secondo EN 15332 sono riportati in etichetta prodotto.

Df

De

H17 (B)

(G) (C) (B)

A

B

C

E

F

G

M

N

O

Uscita acqua calda sanitaria G 2” F

Connessione per ricircolo o per prelievo acqua calda

sanitariaG1”1/2F.Permodelli>1500 G2”F

Connessione per strumentazione G 1/2” F

Connessione per secondo anodo di magnesio G 1”1/4 F

(solo per modelli > 1500)

Connessione per anodo di magnesio G 1” 1/4 F

Connessione per strumentazione G 1/2” F

Ingresso acqua sanitaria G 1” 1/2 F . Per modelli > 1500

G2”F

Ingresso alternativo acqua sanitaria o connessione per

collegamento in serie di più bollitori G 1” 1/2 F . Per modelli

>1500 G2”F

H17 (B)

H15 (E)

(G) (C) (B)

H15 (E)

H17 (B)

(G) (C) (B)

H15 (E)

H7 (F)

H7 (F)

H7 (F)

Vedi sezione

PREPARATORI RAPIDI

Scarico

Flangia

H1 (O)

H1 (O)

H1 (O)

1070

850

2198

2240

3140

1210

950

2440

2495

2730

1360

1100

2492

2570

2850

1350

1250

2811

2950

3130

1700

1600

2915

3130

3380

89

109

91

140

94

501

611

801

454

440

675

825

1075

467

692

867

842

551

836

1011

1036

580

855

1030

1035

189

562

649

989

ACCUMULO

Df

(A)

De

(AD)f

R

1

R

1

R

1

H13 (P)

H13 (P)

H11 (G)

H13 (P)

H11 (G)

H9 (Q)

H9 (Q)

H11 (G)

H6 (G)

H9 (Q)

H4 (R)

H6 (G)

H2 (M) (N)

H4 (R)

H6 (G)

H2 (M) (N)

H41((RO))

H2 (M) (N)

H1 (O)

H

H

H

(A)

Completa il tuo

impianto con il

nuovo MODULO PRS

(Preparatore Rapido di

Acqua Calda Sanitaria)

P

r

o

d

o

t

t

i

p

r

o

g

e

t

t

a

t

i

e

r

e

a

l

i

z

z

a

t

i

p

e

r

l

u

t

i

l

i

z

z

o

e

n

t

r

o

i

l

i

m

i

t

i

d

i

t

e

m

p

e

r

a

t

u

r

a

e

d

i

p

r

e

s

s

i

o

n

e

d

e

l

l

A

r

t

.

4

.

3

d

e

l

l

a

D

i

r

e

t

t

i

v

a

2

0

1

4

/

6

8

/

E

U

(

P

E

D

)

R

2

R

2

R

2

E

X

T

R

A

E

V

A

S

I

I

N

E

R

Z

I

A

L

I