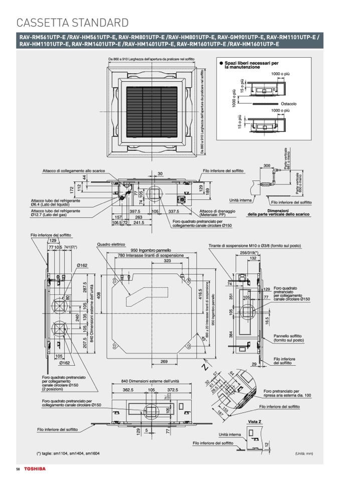
CASSETTA STANDARD

RAV-RM561UTP-E /RAV-HM561UTP-E, RAV-RM801UTP-E /RAV-HM801UTP-E, RAV-GM901UTP-E, RAV-RM1101UTP-E /

RAV-HM1101UTP-E, RAV-RM1401UTP-E /RAV-HM1401UTP-E, RAV-RM1601UTP-E /RAV-HM1601UTP-E

58

Attacco tubo del refrigerante

Ø6.4 (Lato del liquido)

Attacco tubo del refrigerante

Ø12.7 (Lato del gas)

Filo inferiore del soffitto

129

77105 74/137(*)

Ø162

157

106.5 72

1

7

4

Unità interna

Filo inferiore del soffitto

397.5

105

337.5

Attacco di drenaggio

Dimensioni

(Meteriale: PP)

della parte verticale dello scarico

263

241.5

Foro quadrato pretranciato per

collegamento canale circolare Ø150

105

Ø162

Foro quadrato pretranciato

per collegamento

canale circolare Ø150

(2 posizioni)

Foro quadrato pretranciato per

collegamento canale circolare Ø150

269

Z

5

7

64

840 Dimensioni esterne dell’unità

3

2

6

1

8

.

5

362.5

105

372.5

2

/

4

)

*

(

7

3

7

1

18

155

7

29

Filo inferiore

del soffitto

Foro pretranciato per

ripresa aria esterna dia. 100

Filo inferiore del soffitto

Da 860 a 910 Larghezza dell’apertura da praticare nel soffitto

Spazi liberi necessari per

la manutenzione

o

t

i

1000 o più

f

o

s

l

e

n

e

u

̀

i

p

r

a

c

i

t

a

u

̀

i

o

5

1

r

p

a

p

o

d

a

0

r

u

t

r

e

0

1

Ostacolo

1000 o più

p

a

l

e

d

a

u

̀

i

p

z

e

h

o

5

1

g

r

a

L

0

1

9

a

0

6

8

a

D

e

l

a

c

i

t

r

e

o

n

e

v

e

t

r

m

o

1

300

a

P

6

Attacco di collegamento allo scarico

30

Filo inferiore del soffitto

4

e

l

a

c

i

t

r

o

n

e

2

9

e

v

e

m

o

0

2

7

1

1

7

5

0

2

1

9

8

1

t

r

a

P

5

8

Quadro elettrico

950 Ingombro pannello

780 Interasse tiranti di sospensione

323

Tirante di sospensione M10 o Ø3/8 (fornito sul posto)

256/319(*)

132

5

.

e

74

7

8

a

̀

t

i

n

5

n

o

i

s

n

129

Foro quadrato

pretranciato

0

2

u

l

e

8

0

.

6

1

e

p

s

o

o

l

1

5

105

77

per collegamento

8

d

e

4

4

s

i

d

e

n

n

a

3

canale circolare Ø150

5

n

i

t

p

0

1

r

e

t

s

n

a

r

i

t

o

r

b

5

0

5

e

i

e

s

m

o

g

0

1

4

2

3

1

n

o

i

a

r

e

t

n

I

0

5

.

6

5

s

n

e

n

I

0

5

9

1

0

1

m

i

D

2

±

0

9

4

8

5

.

4

0

6

3

4

5

Pannello soffitto

̊

(fornito sul posto)

7

0

2

8

Filo inferiore del soffitto

9

7

2

1

7

5

Unità interna

Filo inferiore del soffitto

2

1

(*) taglie: sm1104, sm1404, sm1604

5

0

1

Vista Z

(Unità: mm)