Istruzioni di montaggio per frigoriferi e congelatori a libera installazione

ModellI KG49NXIDF KG49NXIEP e KG49NXXEA

e

c

b

d

h

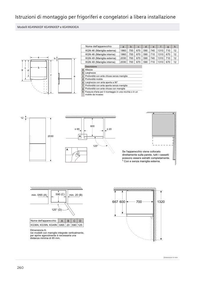
Nome dell'apparecchio

KGN 46 (Maniglia esterna)

KGN 46 (Maniglia interna)

KGN 49 (Maniglia esterna)

KGN 49 (Maniglia interna)

Descrizione

a

b

c

1860 700 670

1860 700 670

2030 700 670

2030 700 670

d

e

590 740

590 710

590 740

590 710

f

g

h

1310 710 12

1310 670 12

1310 710 12

1310 670 12

g

Altezza

Larghezza

Profondità con anta chiusa senza maniglia

Profondità mobile

Larghezza con anta aperta a 90°

Profondità con anta aperta senza maniglia

Profondità con anta chiusa con maniglia

Fessura d'aria per il montaggio in una nicchia o in un

mobile da incasso

f

a

12

600

≥ 20

2030

min. 0/65 (A)

min. 20 (B)

Se l'apparecchio viene collocato

direttamente sulla parete, tutti i cassetti

possono essere estratti completamente.

* Con e senza maniglia esterna.

667 600

1320

125°

260

125° (D)

a

b

c

d

e

f

g

h

≥ 65

A

A

590 (C)

700

Nome dell'apparecchio

A

B

C

D

KG36N, KG39N, KG49N

0/65

20

590

125

Dimensione A:

nei modelli con maniglie integrate verticalmente,

per aprire agevolmente è necessaria una

distanza minima di 65 mm.

Dimensioni in mm