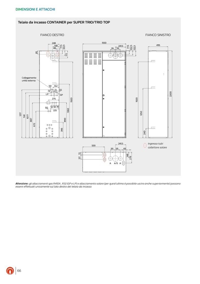
DIMENSIONI E ATTACCHI

Telaio da incasso CONTAINER per SUPER TRIO/TRIO TOP

FIANCO DESTRO

FIANCO SINISTRO

Collegamento

unità esterna

LP

GP

275

0

2

9

0

2

9

1

1

248

148

48

1100

5

,

5

,

5

5

5

,

,

,

495

7

2

7

2

2

241,5

1

0

1

2

1

115 115

5

8

2

7

1

50 162

72 72 55

0

2

50 505078

225

0

6

7

1

3

1

0

5

2

1

1

4

1

7

0

2

1

1

7

8

0

9

8

2

7

6

6

9

3

0

4

2

559

241,5

115 115

65

Ingresso tubi

collettore solare

2

7

8

4

1

9

1

7

2

A A/S A

Attenzione: gli allacciamenti gas R410A , R32 (GP e LP) e allacciamento solare (per quest’ultimo

è possibile uscire anche superiormente) possono

essere effettuati unicamente sul lato destro del telaio da incasso.

66