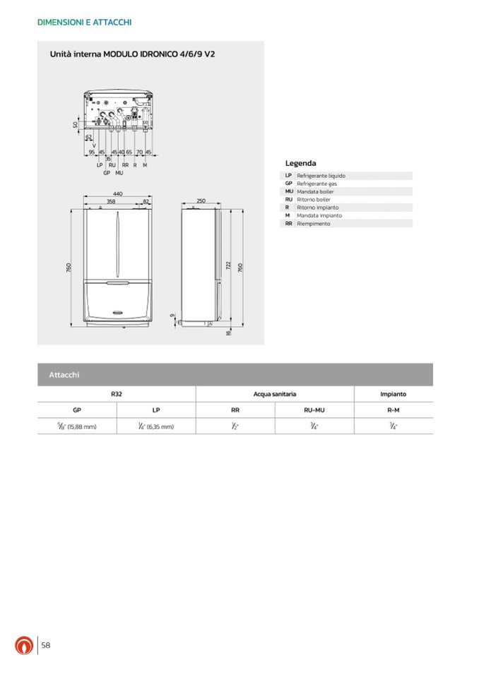
DIMENSIONI E ATTACCHI

58

Unità interna MODULO IDRONICO 4/6/9 V2

0

5

62

V

9545 4540657045

35

LP RU RR R M

Legenda

LP

Refrigerante liquido

GP

Refrigerante gas

MU

Mandata boiler

RU

Ritorno boiler

R

Ritorno impianto

M

Mandata impianto

RR

Riempimento

GP MU

440

358

82

250

0

6

2

7

0

6

7

7

Attacchi

GP

5

8” (15,88 mm)

R32

6

3

RR

1

2”

Acqua sanitaria

Impianto

R-M

3

4”

LP

1

4” (6,35 mm)

RU-MU

3

4”

9