40
Vite di sospensione
550
163
588 Punto di sospensione
900
Vista B
Portello d'ispezione
(Apertura nel so
ffitto)
40
700
69
74
KG
738 Punto di sospensione
32
·600· o pi
ù
Spazio necessario per la
manutenzione
KA
Vedere nota 3
KC
KB
KE
NOTE
KK
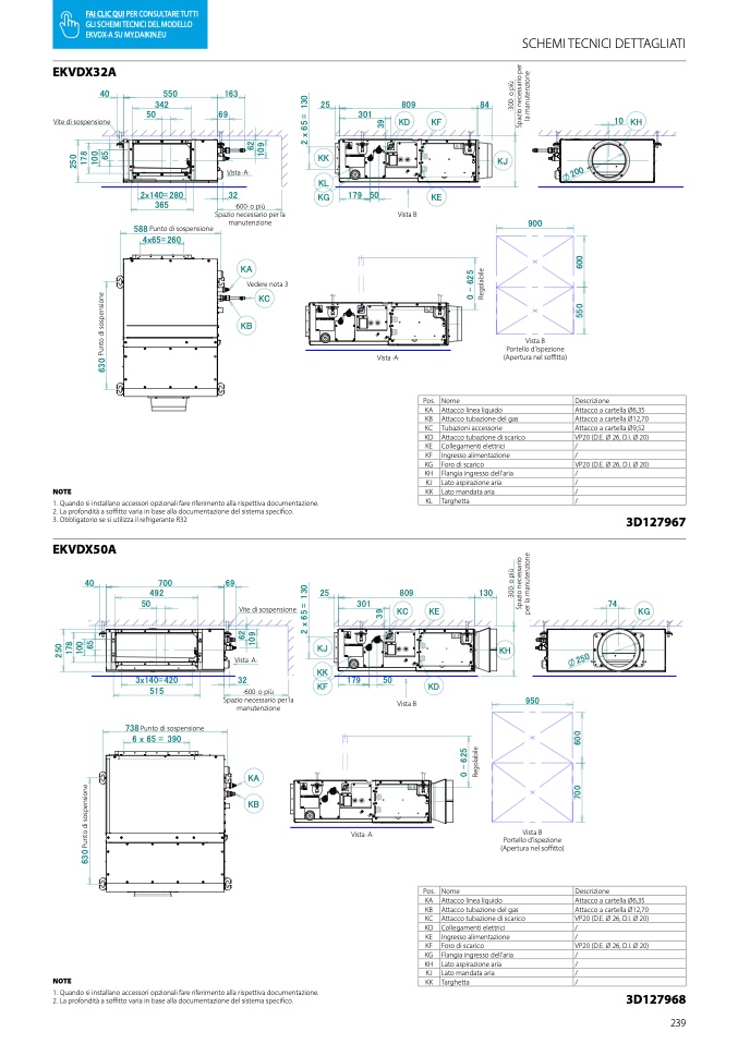
1. Quando si installano accessori opzionali fare riferimento alla rispettiva documentazione.
2. La profondit
à a soffitto varia in base alla documentazione del sistema specifico.
3. Obbligatorio se si utilizza il refrigerante R32
KL
Vite di sospensione
a ·A·
NOTE
KK
1. Quando si installano accessori opzionali fare riferimento alla rispettiva documentazione.
2. La profondit
à a soffitto varia in base alla documentazione del sistema specifico.
25
KL
KG
17
9
50
809
84
25
809
130
KK
32
K
F
17
9
5
0
KD
·600· o pi
ù
Spazio necessario per la
manutenzione
KA
KB
Vista B
950
Vista B
Portello d'ispezione
(Apertura nel soffitto)
Vista ·A·
Vista ·A·
Pos.
KA
KB
KC
KD
KE
KF
KG
KH
KJ
Nome
Attacco linea liquido
Attacco tubazione del gas
Tubazioni accessorie
Attacco tubazione di scarico
Collegamenti elettrici
Ingresso alimentazione
Foro di scarico
Flangia ingresso dell'aria
Lato aspirazione aria
Lato mandata aria
Targhetta
Descrizione
Attacco a cartella Ø6,35
Attacco a cartella Ø12,70
Attacco a cartella Ø9,52
VP20 (D.E. Ø 26, D.I. Ø 20)
/
/
VP20 (D.E. Ø 26, D.I. Ø 20)
/
/
/
/
Pos.
KA
KB
KC
KD
KE
KF
KG
KH
KJ
Nome
Attacco linea liquido
Attacco tubazione del gas
Attacco tubazione di scarico
Collegamenti elettrici
Ingresso alimentazione
Foro di scarico
Flangia ingresso dell'aria
Lato aspirazione aria
Lato mandata aria
Targhetta
Descrizione
Attacco a cartella Ø6,35
Attacco a cartella Ø12,70
VP20 (D.E. Ø 26, D.I. Ø 20)
/
/
VP20 (D.E. Ø 26, D.I. Ø 20)
/
/
/
/
10 KH
239
342
69
50
1
7
8
1
0
0
6
5
6
2
Vista ·A·
2x140= 280
365
O
2
00
301
KD
KF
3
9
KJ
KK
ViVeiswta·BB·
4x65= 260
492
50
1
7
8
1
0
0
6
5
6
2
Vist
3x140= 420
515
O
2
50
301
KC
KE
3
9
KH
KJ
6x65= 390
6
3
0
P
u
n
t
o
d
i
s
o
s
p
e
n
s
i
o
n
e
7
0
0
6
0
0
5
5
0
6
0
0
0
-
6
2
5
0
-
6
2
5
R
e
g
o
l
a
b
i
l
e
R
e
g
o
l
a
b
i
l
e
2
5
0
1
0
9
2
x
6
5
=
1
3
0
1
0
9
2
x
6
5
=
1
3
0
·
3
0
0
·
o
p
i
u
̀
S
p
a
z
i
o
n
e
c
e
s
s
a
r
i
o
p
e
r
l
a
m
a
n
u
t
e
n
z
i
o
n
e
·
3
0
0
·
o
p
i
u
̀
S
p
a
z
i
o
n
e
c
e
s
s
a
r
i
o
p
e
r
l
a
m
a
n
u
t
e
n
z
i
o
n
e
6
3
0
P
u
n
t
o
d
i
s
o
s
p
e
n
s
i
o
n
e
2
5
0
FAI CLIC QUI PER CONSULTARE TUTTI
GLI SCHEMI TECNICI DEL MODELLO
EKVDX-A SU MY.DAIKIN.EU