VRF A 3 TUB

I

MMY-MAP_FT8

P

SHRM-e

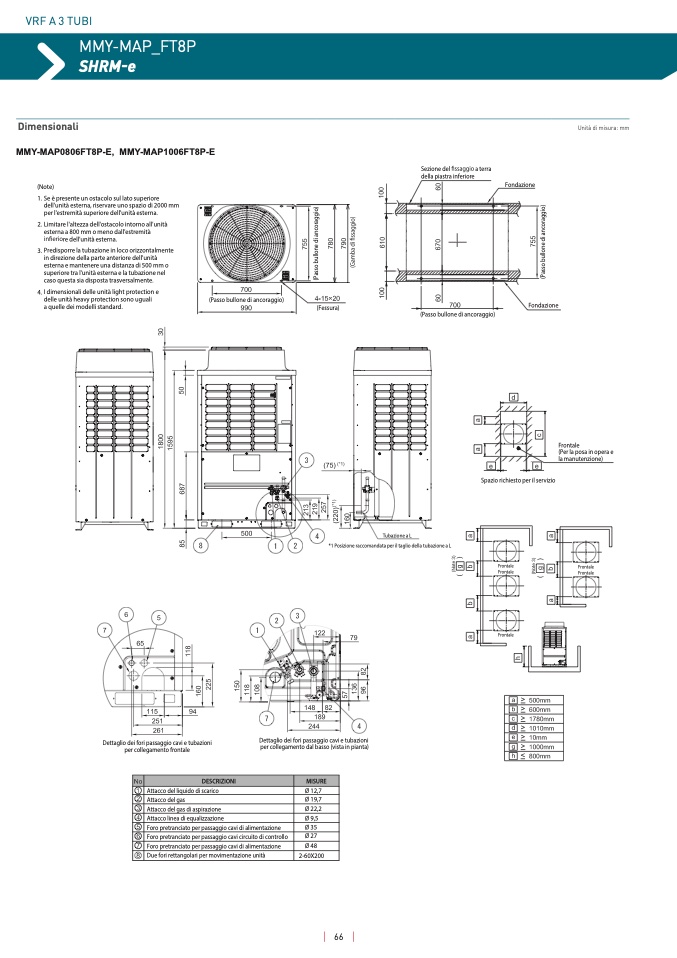
Dimensionali

Unità di misura: m

m

MMY-MAP0806FT8P-E, MMY-MAP1006FT8P-

E

Sezione del

a terra

della piastra inferiore

(Note)

1. Se è presente un ostacolo sul lato superior

e

dell'unità esterna, riservare uno spazio di 2000 mm

per l'estremità superiore dell'unità esterna.

2. Limitare l'altezza dell'ostacolo intorno all'unità

esterna a 800 mm o meno dall'estremit

à

re dell'unità esterna

.

3. Predisporre la tubazione in loco orizzontalmente

in direzione della parte anteriore dell'unit

à

esterna e mantenere una distanza di 500 mm

o

superiore tra l'unità esterna e la tubazione ne

l

caso questa sia disposta trasversalmente.

4. I dimensionali delle unità light protection

e

delle unità heavy protection sono ugual

i

a quelle dei modelli standard.

Fondazione

(

P

a

s

s

o

b

u

l

l

o

n

e

d

i

a

n

c

o

r

a

g

g

i

o

)

(Passo bullone di ancoraggio

)

(

P

a

s

s

o

b

u

l

l

o

n

e

d

i

a

n

c

o

r

a

g

g

i

o

)

Fondazion

e

(Fessura

)

(Passo bullone di ancoraggio

)

Frontal

e

(Per la posa in opera

e

la manutenzione)

Spazio richiesto per il servizio

Tubazione a

L

*1 Posizione raccomandata per il taglio della tubazione a

L

Frontal

e

Frontal

e

Frontal

e

Frontal

e

Frontal

e

Dettaglio dei fori passaggio cavi e tubazion

i

per collegamento frontal

e

Dettaglio dei fori passaggio cavi e tubazion

i

per collegamento dal basso (vista in pianta)

DESCRIZIONI

MISUR

E

Attacco del liquido di scaric

o

Ø 12,

7

Attacco del gas

Ø 19,

7

Attacco del gas di aspirazion

e

Ø 22,

2

Attacco linea di equalizzazion

e

Ø 9,

5

Foro pretranciato per passaggio cavi di alimentazion

e

Ø 3

5

Foro pretranciato per passaggio cavi circuito di controll

o

Ø 2

7

Foro pretranciato per passaggio cavi di alimentazion

e

Ø 4

8

Due fori rettangolari per movimentazione unit

à

2-60X200

66