SIDE BLO

W

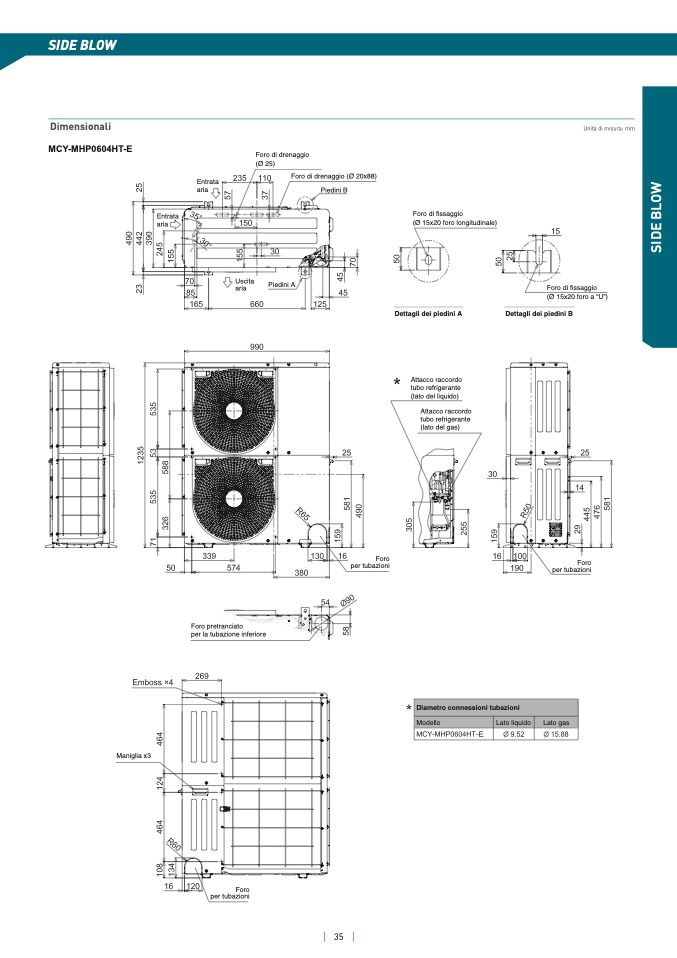
Dimensionali

Unità di misura: m

m

MCY-MHP0604HT-E

Foro di drenaggi

o

(Ø 25

)

Entrat

a

ari

a

Foro di drenaggio (Ø 20x88)

Piedini B

Entrat

a

ari

a

Foro di fissaggio

(Ø 15x20 foro longitudinale

)

S

I

D

E

B

L

O

W

Uscit

a

ari

a

Piedini

A

Dettagli dei piedini A

Foro di fissaggio

(Ø 15x20 foro a “U”)

Dettagli dei piedini

B

Attacco raccordo

tubo refrigerante

(lato del liquido

)

Attacco raccordo

tubo refrigerante

(lato del gas)

Foro

per tubazion

i

For

o

per tubazion

i

Foro pretranciato

per la tubazione inferiore

Diametro connessioni tubazion

i

Modell

o

Lato liquid

o

Lato ga

s

Maniglia x3

For

o

per tubazioni

35