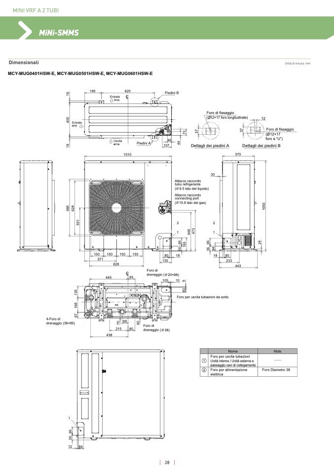
MCY-MUG0401HSW-E, MCY-MUG0501HSW-E, MCY-MUG0601HSW-E
195
62
0
4
0
5
1
9
Entrata
ari
a
1
9
6
6
5
6
2
8
Entrata
Ari
a
C
L
Uscit
a
arria
1010
Piedini A
4
6
107
Piedini
B
4
4
7
3
Attacco raccordo
tubo refrigerant
e
(Ø 9.5 lato del liquido
)
Attacco raccordo
connecting port
1
0
5
0
5
0
1
6
7
1
6
8
1
3
5
4-Foro d
i
drenaggio (36×85)
150
150
150
150
37
1
628
C
L
445
83
7
0
69
6
0
215
80
Foro di fissaggi
o
( 12×17 foro longitudinale)
1
2
3
7
3
7
Foro di fissaggio
( 12×17
foro a “U”)
Dettagli dei piedini A
Dettagli dei piedini B
37
0
3
0
(Ø 15.9 lato del gas)
2
2
1
4
4
8
4
7
3
1
5
5
9
5
1
5
5
5
5
9
5
9
4
80
18
18
135
44
3
Foro d
i
drenaggio (Ø 20×88
)
105
10
9
6
0
Foro per uscita tubazioni da sotto
2
0
5
Foro d
i
drenaggio ( Ø 38)
2
4
80
233
438
N
m
o
e
o
N
e
t
1
2
Foro per uscita tubazion
i
Unità interne / Unità esterna e
passaggio cavi di collegamento
Foro per alimentazione
elettrica
Foro Diametro 38
1
9
5
5
5
12
64
28