2

4

CANALIZZATA A TUTTA ARIA ESTERN

A

Dimensional

i

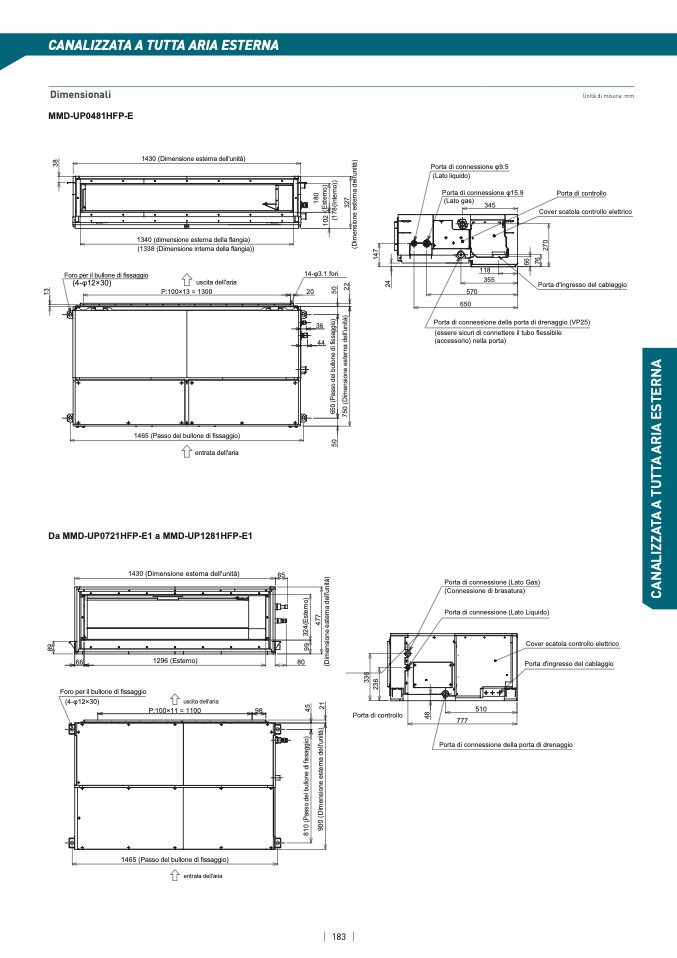
MMD-UP0481HFP-

E

3

8

1430 (Dimensione esterna dell'unità)

1

8

0

(

E

s

t

e

r

n

o

)

(

1

7

8

(

I

n

t

e

r

n

o

)

)

1

0

2

1340 (dimensione esterna della flangia

)

(1338 (Dimensione interna della flangia)

)

Porta di connessione φ9.5

(Lato liquido

)

Foro per il bullone di fissaggi

o

(4-φ12×30)

Porta di connessione φ15.9

1

3

(Lato gas)

uscita dell'aria

Porta di controll

o

P:100×13 = 130

0

34

5

Cover scatola controllo elettric

o

3

6

11

8

355

57

0

650

2

7

0

6

6

7

6

Porta d'ingresso del cablaggio

Porta di connessione della porta di drenaggio (VP25)

4

4

(essere sicuri di connettere il tubo flessibil

e

(accessorio) nella porta

)

1465 (Passo del bullone di fissaggio)

14-φ3.1 for

i

2

0

6

5

0

(

P

a

s

s

o

d

e

l

b

u

l

l

o

n

e

d

i

f

i

s

s

a

g

g

i

o

)

5

0

5

0

entrata dell'aria

Da MMD-UP0721HFP-E1 a MMD-UP1281HFP-E1

1430 (Dimensione esterna dell'unità)

85

3

2

4

(

E

s

t

e

r

n

o

)

4

7

7

8

9

9

9

66

1296 (Esterno)

80

(

D

i

m

e

n

s

i

o

n

e

e

s

t

e

r

n

a

d

e

l

l

'

u

n

i

t

à

)

Foro per il bullone di fissaggi

o

(4-φ12×30

)

uscita dell'aria

P:100×11 = 1100

9

8

4

5

2

1

8

1

0

(

P

a

s

s

o

d

e

l

b

u

l

l

o

n

e

d

i

f

i

s

s

a

g

g

i

o

)

9

0

0

(

D

i

m

e

n

s

i

o

n

e

e

s

t

e

r

n

a

d

e

l

l

'

u

n

i

t

à

)

1465 (Passo del bullone di fissaggio)

entrata dell'aria

3

2

7

2

2

7

5

0

(

D

i

m

e

n

s

i

o

n

e

e

s

t

e

r

n

a

d

e

l

l

'

u

n

i

t

à

)

183

(

D

i

m

e

n

s

i

o

n

e

e

s

t

e

r

n

a

d

e

l

l

'

u

n

i

t

à

)

1

4

7

2

4

3

3

6

2

3

6

Porta di controllo

Unità di misura: mm

Porta di connessione φ9.5

(Lato liquido

)

Porta di connessione φ15.9

(Lato gas)

Porta di controllo

34

5

Cover scatola controllo elettrico

2

7

0

6

6

7

6

11

8

35

5

Porta d'ingresso del cablaggio

57

0

65

0

Porta di connessione della porta di drenaggio (VP25

)

(essere sicuri di connettere il tubo flessibile

(accessorio) nella porta)

8

9

1430 (Dimensione esterna dell'unità)

85

C

A

N

A

L

I

Z

Z

A

T

A

A

T

U

T

T

A

A

R

I

A

E

S

T

E

R

N

A

6

6

1296 (Esterno

)

Porta di connessione (Lato Gas)

(Connessione di brasatura)

Foro per il bullone di fissaggi

o

(4-φ12×30

)

uscita dell'aria

Porta di connessione (Lato Liquido)

P:100×11 = 1100

98

Cover scatola controllo elettric

o

Porta d'ingresso del cablaggio

51

0

4

8

77

7

Porta di connessione della porta di drenaggi

o

1465 (Passo del bullone di fissaggio)

entrata dell'aria